• Blick zur Bühne/ Foto: Joshua Krull

AULA - Bildungscampus II

Heilbronn

Die Erweiterung des Bildungscampus

Der Bildungscampus der Dieter Schwarz Stiftung ist ein Ort des lebenslangen Lernens, auf dem verschiedenste Bildungseinrichtungen angesiedelt sind, deren Studien- und Weiterbildungsangebote sich ideal ergänzen.
Die Dieter Schwarz Stiftung unterstützt die Bildungseinrichtungen durch die Bereitstellung von Räumlichkeiten auf dem Bildungscampus und deren Erstausstattung sowie durch den Aufbau der dortigen Infrastruktur, um einen lebendigen und vielfältigen Lern- und Lebensort zu schaffen.
Mit der AULA steht den ansässigen Institutionen eine Veranstaltungsstätte zur Verfügung, die auch extern für Tagungen oder Kongresse angemietet werden kann.

 

 

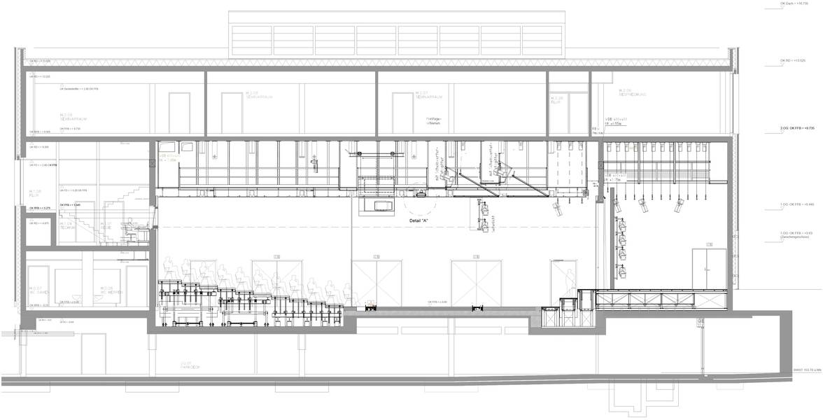
Planungsaufgaben

Bühne:

  • stufenlos verfahrbare Vorbühnenpodienanlagen
  • Rohrwellenzüge
  • Motorischer Hauptvorhang
  • Konzertwände mit Schienen
  • Bühnenholz und Bühnentextilien

Saal:

  • Saalpodienanlage
  • Hängepunkte
  • Kettenzüge
  • schließbare Z-Brücken

Beleuchtung / AV:

  • Displaywalls mit Fahrwerk
  • Dolmetscherkabine und Simultanübersetzungsanlage
  • hochwertige Video- und Präsentationstechnik 
  • Bühnenbeleuchtung, Infrastruktur, Scheinwerfer, Regieplatz
  • hochwertige Beschallungsanlage
  • Versatzkästen in allen Veranstaltungsbereichen

Projektdaten

Neubau

Nutzung:
Mehrzweck
Fassungsvermögen:
bis zu 540 Plätze
Bühnengrundfläche:
150 m²
Fertigstellung:
2016
Bauherr:
Schwarz Immobilienmanagement GmbH & Co.KG
 

Top