• Friedrichtforum

Friedrichsform

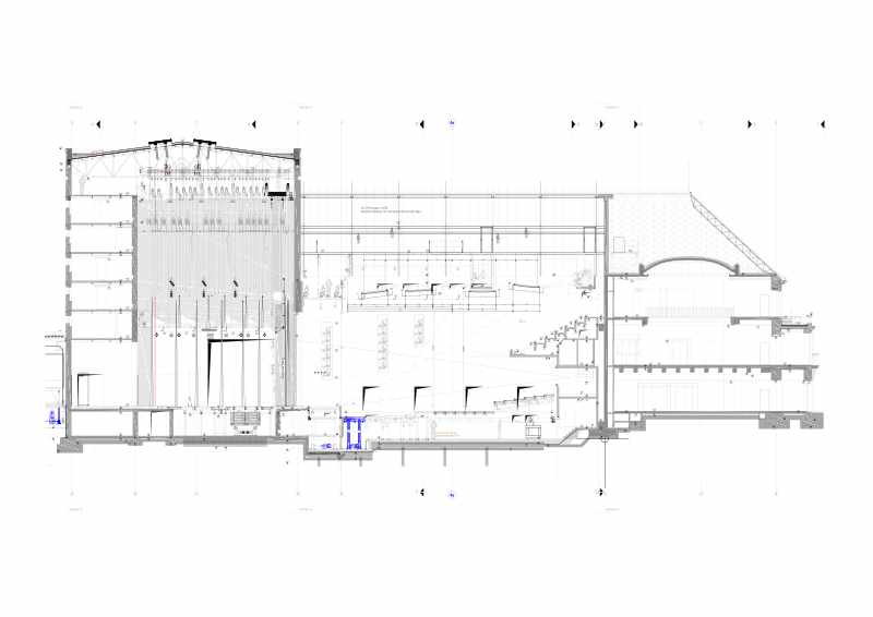
Bayreuth

Im Rahmen des Projekts wurde eine umfangreiche szenische Ausstattung für Großes Haus, Kleines Haus und die weiteren Versammlungsräume geplant und umgesetzt.

Bühnenobermaschinerie
Das Große Haus verfügt u. a. über 24 elektromotorische Prospektzüge, mehrere Plafond- und Vorbühnenzüge, Beleuchtungs- und Galeriezüge, Portalbrückenantrieb, Hauptvorhangzüge, Kettenzüge für Schallsegel, Saalzüge, Punktzüge sowie eine elektromotorische Filmleinwand. Im Kleinen Haus wurden Prospektzüge als Rohrwellenzüge sowie ebenfalls eine Filmleinwand vorgesehen.

Bühnenuntermaschinerie
Zur Ausstattung zählen u. a. eine große Drehscheibe, Transportpodium, Drehring, Orchesterpodium, Hubbrüstung sowie ein Anlieferungspodium.

Zuschauerraum
Die festen und beweglichen Stahlkonstruktionen umfassen eine Saalpodienanlage, feste Aufständerungen links, rechts und mittig, eine Saalbodenhubanlage als Stufenverstelleinrichtung, Transportpodien inkl. Übergangskonstruktionen sowie Saalausgleichspodien.

Bühnentextilien
Im Großen Haus: Hauptvorhang (zweiteilig) und Bühnenaushang.
Im Kleinen Haus: Bühnenaushang.

Beleuchtung
Für Bühne, Z-Brücke und Unterbühne wird eine gleichmäßige Arbeitsbeleuchtung mit ca. 200 lx mittels LED-Langfeldleuchten realisiert. Ergänzt wird diese durch dimmbare LED-Blaulichtleuchten als Orientierungslicht.

Ton & Regie
Im Großen Haus ist eine Tonregie vorgesehen, sämtliche Versammlungsräume erhalten FOH-Plätze im Zuschauerbereich. Digitale Tonmischpulte mit Stageboxen, Zuspiel- und Aufnahmegeräte sowie frei zuweisbare Signalwege über Patchfelder sichern eine flexible Nutzung. Abhörmonitore und Kopfhörer runden die Ausstattung ab.

Weitere Ausstattung
Für das Konzertzimmer wurde eine flexible Podesterie eingeplant.

Projektdaten

Sanierung

Nutzung:
Stadthalle, Oper, Konzerte, Theater, Kongress, Personalversammlung, Seminare, Tagungen, Karnevalsveranstaltungen, Ballveranstaltungen, Abschlussbälle
Fassungsvermögen:
Großes Haus: 800 Personen
Balkonsaal: 360 Personen
Kleines Haus: 210 Personen
Bühnengrundfläche:
160m²
Bühnen- und Veranstaltungstechnik:
Bühnentechnik, Medientechnik, Szenische Beleuchtung, Bühnentextilien, Bühnenholz
Beginn der Maßnahme:
2015
Bauherr:
Stadt Bayreuth - Hochbauamt

Top